WEST PUTNEY HOUSE

LONDON

Heritage Reworked for Family Life.

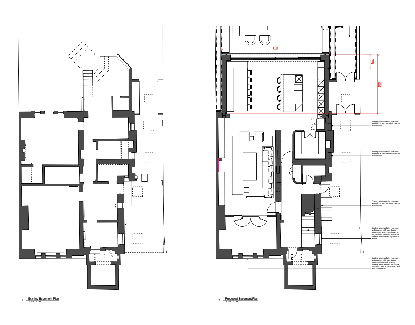
This full renovation of a five-bedroom stone townhouse in Putney brings together architectural clarity with rich character. The scheme blends classical detailing with expressive contemporary elements, creating spaces that feel both elegant and unexpected. A new garden-level extension introduces steel-framed glazing and light-filled volumes, while the interior palette is layered with natural stone, warm timber, and curated antiques. From ornate fireplaces and bold artwork to finely detailed joinery, every room is designed with both family life and quiet drama in mind.

Complete conversion and basement extension.